Popis nemovitosti
V bezprostřední blízkosti jižně od Brna se v Modřicích na ulici Sadové nachází byt s dispozicí 3+1, který Vám brzy může říkat paní nebo pane. Ať už hledáte pro sebe a svou rodinu nový vhodný domov nebo myslíte na budoucnost a chcete pro své děti zajistit vlastní bydlení, které byste do té doby pronajímali, tento byt může být právě pro Vás vhodnou alternativou.
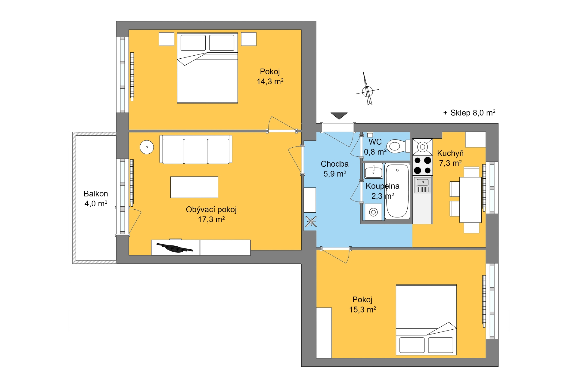
Dispozičně se jedná o byt 3+1 (s jedním průchozím pokojem) o celkové výměře 75 m2, a to včetně zděného sklepa o velmi nadstandardní výměře 8 m2 a včetně balkonu o výměře 4 m2 s výhledem do zeleně, která přirozeně stíní a zajišťuje v bytě příjemnou teplotu v letních měsících i bez klimatizace. Na vnitřní prostor bytu tedy zbývá 63 m2. Největší pokoj, který se historicky vždy využíval jako pokoj obývací, má výměru 17 m2 a skrze něj procházíte do ložnice, která má 14 m2, nebo právě na dříve zmíněný balkon. Poslední obytná místnost se nachází přímo naproti vstupu do bytu vedle kuchyně a má výměru 15 m2. Kuchyň jako taková není žádná luxusní moderna, ale je po všech stránkách funkční, vejde se Vám do ní kuchyňský stůl se židlemi, 45 cm široká myčka, sporák a i lednice, která ovšem v tuto chvíli součástí bytu není. Důvodem je fakt, že byt byl od rekonstrukce pronajímán a lednici měli nájemníci vlastní. V koupelně je menší vana a součástí je i pračka s vrchním plněním. WC je samostatné a je umístěné klasicky hned vedle vstupních dveří do bytu.
V roce 2019 byl byt kompletně zrekonstruován, parkety na podlahách obytných místností byly renovovány, byla vyměněna původní okna za plastová a přidány sítě proti hmyzu pro větší komfort. Od té doby byl byt v pronájmu, ale ani po té době nejeví žádné podstatné známky opotřebení. Stav bytu je naprosto ideální i právě pro pronájem. Obložky jsou železné, interiérové dveře ve sjednoceném dekoru. Vybavení může v bytě zůstat, ale nemusí, záleží na Vašich preferencích a domluvě. Měsíční náklady byly pro 4 člennou rodinu v celkové výši 7 616,- Kč. Do bytu je přivedený i optický kabel, takže si můžete zvolit poskytovatele TV a internetu dle libosti.
Samotný dům je cihlový, bez výtahu a v současné době je v plánu revitalizace ve formě zateplování, čímž se náklady na bydlení do budoucna ještě sníží. Na teplou vodu je zde 150l bojler, vytápění je centrální s dálkovým odečtem. Parkování je řekněme průměrné a bude záležet kolik vozů budete potřebovat zaparkovat a také v jaké časy. Ovšem pokud byste trvali na vlastním parkovacím stání, nezbývá Vám než se poohlédnout po nějaké novostavbě, která Vám parkovací stání, či garáž nabídne; ale to jste s cenovkou už úplně někde jinde.
Na bytě nevázne žádné omezení vlastnického práva a bude předán do 5 pracovních dní od převedení na nového majitele, lze se ale samozřejmě domluvit i odlišně.
PENB nebyl dodán z důvodu na straně SVJ, proto je pro tuto inzerci dům zařazen do kategorie G - mimořádně nehospodárná. V současné době však probíhá příprava revitalizace domu, která bude zahrnovat zateplení celého domu, hromosvod a nové lodžie. Po revitalizaci bude vyhotoven nový PENB odrážející skutečný stav.
Jestli Vás nabídka zaujala a máte ještě nějaké další konkrétní dotazy, tak se na mě neváhejte obrátit ať už telefonicky, mailem nebo vyplněním formuláře. Byt byl do konce roku 2025 rezervovaný, ale protože se zájemci nepodařilo vyřešit financování, tak je opět k dispozici. Byt je volný a prohlídky budou probíhat po domluvě, takže nebude problém se přizpůsobit Vašim časovým možnostem.
Specifikace nemovitosti
Typ nemovitosti
Adresa
Katastrální území
Obec, okres, kraj
Vlastnictví
Omezení vlastnického práva
List vlastnictví domu
List vlastnictví bytu
Parcelní číslo
Stav domu
Stav bytu
Bytová jednotka
Dispozice
Orientace
Číslo podlaží v domě
Výtah v domě
Bezbariérovost
Užitná plocha
Průchozí pokoje
Typ podlah
Okna
sítě proti hmyzu
Lodžie/balkon
Sklep / sklepní kóje
Vybavenost
- vana, koupelnová skříň s umyvadlem, pračka s vrchním plněním
- ručně kovaná postel
- televizní stěna, skříň v chodbě, botník, 2 skříně kallax, konferenční stolek
Příslušenství
Plyn
Elektřina
Voda
Zdroj teplé vody
Topení
Telekomunikace a ostatní rozvody
Příjezdová komunikace
Parkování
Energetická náročnost budovy
PENB nebyl dodán z důvodu na straně SVJ, proto je pro tuto inzerci dům zařazen do kategorie G - mimořádně nehospodárná. V současné době však probíhá příprava revitalizace domu, která bude zahrnovat zateplení celého domu, hromosvod a nové lodžie. Po revitalizaci bude vyhotoven nový PENB odrážející skutečný stav.
Měsíční náklady
elektřina 2 760,- Kč
plyn 240,- Kč
teplo 1 630,- Kč
vodné, stočné 1 200,- Kč
komíny 40,- Kč
společná elektřina 69,- Kč
statutární zástupce SVJ 72,- Kč
pojištění 38,- Kč
příspěvek na správu domu 1 567,- Kč
Občanská vybavenost
Videoprohlídka
3D virtuální prohlídka
Půdorys












































